Pengelly, Delabole
Property Features
- Spacious three bedroom property
- Large level garden
- 3 vehicle car port
- Semi renovated
- Ideal home or investment property
- Near to all amenities
Property Summary
Full Details
We at Kernow Properties are pleased to present this three bedroom, semi detached property with its own parking and sizeable garden. Just requiring renovation to be completed. This is a lot of property for the asking price with its roomy internals and excellent sized gardens, including a large, 3 vehicle car port with power and light.
Notice
Please note we have not tested any apparatus, fixtures, fittings, or services. Interested parties must undertake their own investigation into the working order of these items. All measurements are approximate and photographs provided for guidance only.
Council Tax
Cornwall Council, Band B
Utilities
Electric: Mains Supply
Gas: Unknown
Water: Mains Supply
Sewerage: Mains Supply
Broadband: FTTP
Telephone: Landline
Other Items
Heating: Not Specified
Garden/Outside Space: Yes
Parking: Yes
Garage: Yes
Description
We at Kernow Properties are pleased to present this three bedroom, semi detached property with its own parking and sizeable garden. Just requiring some renovation to be completed. This is a lot of property for the asking price with its roomy internals and excellent sized gardens, including a large, 3 vehicle car port with power and light.
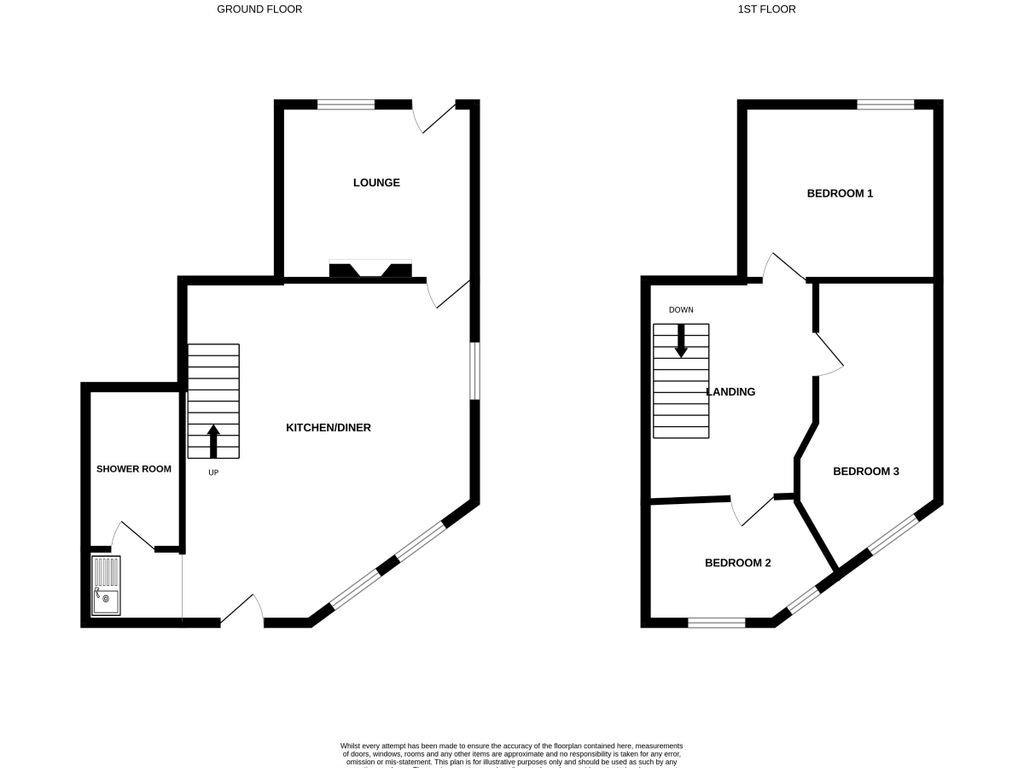
Lounge - 16'6" (5.03m) x 11'5" (3.48m)
From Pengelly Road, enter through a part glazed upvc door into the lounge. There is a upvc sash window to the front aspect overlooking Pengelly road. An inset open fire is to the rear wall. An opening leads through to the kitchen/diner. Radiator.
Kitchen/Diner - 19'10" (6.05m) x 16'9" (5.11m) Max
A large, bright and light room with a high level window and two large windows to the side angled wall and a upvc stable door to the rear giving access to the garden. There are cupboard units with a worktop to one wall and a cooker installed into the stone wall alcove. Stairs rise to the upper floor, and an opening gives access to a door to the shower room. It should be said that the kitchen/diner is in mid renovation, just waiting for the new owner to put their individual stamp on it. Radiator.
Shower Room - 10'0" (3.05m) x 4'7" (1.4m)
Large open, tiled shower with mains rain shower fitted. Low level WC, Pedestal wash hand basin. Radiator. Velux window to the rear aspect.
Top Hallway
Large, open balcony hallway with doors to all three bedrooms. Exposed beam, and loft hatch.
Bedroom 1 - 13'2" (4.01m) x 11'5" (3.48m)
Upvc window to the front aspect with views over Pengelly Road. Central heating radiator.
Bedroom 2 - 9'10" (3m) x 12'7" (3.84m) Max
Angled window to the rear aspect with views over the side lane and rear garden. Loft hatch. Central heating radiator.
Bedroom 3 - 9'0" (2.74m) x 17'0" (5.18m) Max
Angled window to the rear with views over the rear garden. Central heating radiator. Exposed beam
Car Port - 30'0" (9.14m) x 17'5" (5.31m)
In Pengelly Road, parking has always been at a premium which makes this property all the more desirable with is large, 3 car, car port. Wood and block construction with metal roof. Electric and light supplied. There is also a single parking space at the front door. A door to the rear gives access to the rear garden.
Garden
From the back door, step out onto a small slabbed area with a stone and slate log storage bunker. A few stone and slate steps rise up to a large and level rear garden. The garden has been laid out very much with dogs in mind. There is a concreted area to the rear of the carport which winds around a fenced area with Astro turf laid. To the far side is a large concrete standing which could be used to construct a large cabin if required. To the side is a four berth kennel with electric and lighting. this would be an easy conversion to a substantial garden shed. The garden is bordered to the rear by a lovely stone and slate traditional wall,
Shed/Kennel - 13'5" (4.09m) x 6'3" (1.91m)
Wood construction with a metal roof. Light and power supplied.
Agents Notes
A very unusual and surprising property. From the front, you could be forgiven for thinking it is a small, one or two bed cottage, but upon entering it doesnt take long to realise just how big the cottage is. The kitchen/diner is especially big and would suit a family. Upstairs, all the rooms are a good size and are very bright and airy. Outside, the garden is large and level and the large car port is just the cherry on top, making this property ideal for any buyer; families, investors, landlords, etc. At this price it just has to be seen.































